Work
Contact
CLASON - DE LA VEGA
Work
Contact
ARCHITECTURAL DRAWINGS (CAD)
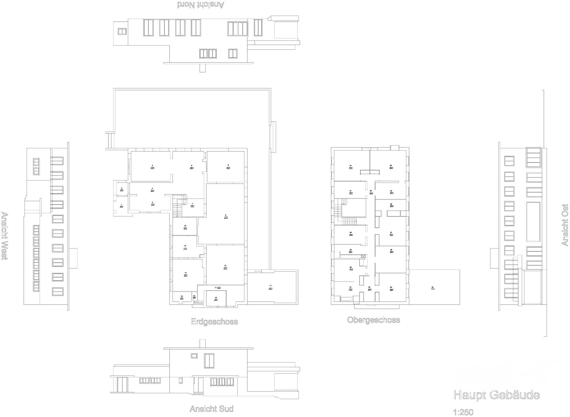
2D CAD Drawings of an Apartment Building in Berlin, Germany
↑
Back to Top